
Levitt-SV
4
BEDS
2.5
BATHS
2623
SQ FT
2
GARAGE
Options Available:
discuss with our sales team for more information.
RENDERING MAY SHOW FEATURES THAT VARY FROM THE STANDARD PLAN
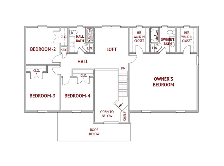
ABOUT
The Levitt-SV enhances the charm and functionality of the beloved Levitt design by offering more space and thoughtful details to suit growing families. The expanded layout includes a separate Dining Room and Breakfast Area, a convenient first-floor Laundry Room, and a grand two-story Foyer that welcomes you with its airy, open feel. Upstairs, the impressive Owner's Suite is complemented by three spacious secondary bedrooms and a versatile loft space that can easily adapt to your needs. The traditional exterior of the Levitt-SV can be customized to reflect your personal style, from classic touches like stone accents to a stately design that radiates timeless elegance. Whether you prefer the modern farmhouse vibe or the more classic traditional look, this home offers flexibility and style, making it the perfect choice for your forever home.








